2 render progetto3 - Creo Progetti Roma
Cover localecommerciale - Creo Progetti Roma

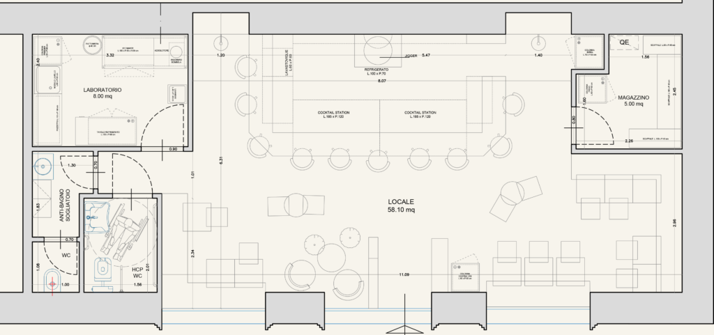
Per Jigger il progetto ha richiesto un cambio di prospettiva: non più uno spazio domestico, ma un cocktail bar in cui ogni scelta doveva rispondere a esigenze operative precise. Il confronto costante con il cliente e l’attenzione ai dettagli hanno guidato un percorso fatto di verifiche e affinamenti continui. Un lavoro di precisione che ha portato alla realizzazione di uno spazio funzionale, coerente e pensato per essere vissuto ogni giorno.

Il risultato è un locale completato con successo, capace di tenere insieme visioni differenti all’interno di un progetto solido e condiviso.

Un design pensato per funzionare.

Jigger è un progetto di interior design concepito per dare forma a un cocktail bar contemporaneo, dove funzionalità professionale ed estetica ricercata si fondono in un’unica esperienza.

 

Lo studio ha seguito l’intero processo progettuale, dalla definizione del layout distributivo allo sviluppo degli arredi su misura dei dettagli costruttivi, fino al coordinamento delle soluzioni impiantistiche.

Location

Frascati, Italia

Cliente

Privato

Tipologia progetto

Ristrutturazione Bar

Categoria

Locale Commerciale

Pratica Edilizia

CILA

Dimensioni

90 m²

Il bancone è l’elemento centrale: materiali selezionati, finiture pregiate, dettagli metallici e le superfici retroilluminate definiscono l’ambiente ancora più elegante.  

Ogni scelta progettuale nasce da un equilibrio attento tra design, ergonomia e tecnologia, dando vita a uno spazio esclusivo, pensato per offrire un’esperienza sensoriale raffinata e senza compromessi.

Ogni scelta è stata guidata da una analisi progettuale preliminare seguita da una verifica di fattibilità.

Crediamo che buone idee debbano sempre essere accompagnate da uno studio approfondito.

Arredi su misura, bottigliera progettata ad hoc e soluzioni tecniche integrate dialogano con un concept cromatico sofisticato e con elementi decorativi dal carattere distintivo.

L’intervento si distingue per l’equilibrio tra rigore progettuale e ricerca espressiva: ogni elemento, dagli arredi personalizzati alle scelte cromatiche e illuminotecniche, è pensato per costruire un ambiente coerente, elegante e riconoscibile, in linea con una visione contemporanea del design per l’ospitalità

Hai qualche progetto in testa?

Ci piacerebbe lavorare con te!

Scopri gli altri progetti